
Copyright © 2025 Rivendale Homes

Written by: Gama Cancino, M.S Construction Management
Published by: Rivendale Homes | Austin, Texas Custom Home Builder
Poka Yoke, meaning mistake-proofing in Japanese, is a core principle in Lean Construction. It focuses on using clear visuals, standardized processes, and intentional design to reduce the likelihood of human error during construction. In custom homebuilding, where unique designs and selections constantly introduce variability, mistake-proofing becomes essential to maintain consistency across all phases of the project.
Custom homebuilding is complex by nature. Each home involves thousands of unique components and decisions, coordinated across architecture, engineering, interior design, trade partners, and inspections. Without strong communication controls, a single incorrect assumption—such as a fixture height, tile direction, or structural cut—can disrupt progress. Poka Yoke supports teams by establishing clarity at every step, which reduces rework and supports predictable execution while preserving the integrity of the design intent.

Figure 1. Rivendale Homes Internal Plan Elevations of Primary Bathroom.
Rivendale Homes Texas applies mistake-proofing from the earliest stages of design. During architectural coordination, we work with the design team to confirm that drawings clearly communicate height dimensions, lighting locations, cabinet layouts, and plumbing fixture placements. When additional clarity is needed, we add field-directed notes to reinforce design intent and avoid assumptions. For example, in Figure 1, our team noted that the lights were roughed within the mirror line and added a verification reminder regarding the backsplash alignment. These annotations support effective communication between design and field operations, which helps reduce the likelihood of installation errors.

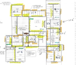
Figure 2. Rivendale Homes Internal Engineer Elevations.
We also use Poka Yoke during structural material planning. Our team performs detailed material counts and marks engineered lumber with color indicators to show intended placement. Clear labeling reduces the chance of mis-cutting high-value components such as LVLs. For example, marking a 16-foot LVL to be cut into two 8-foot pieces supports correct installation and protects schedule flow. We maintain accompanying spreadsheets to track counts and verify alignment during installation.

Figure 3. Rivendale Homes Internal Tile Selections.
Another application is tile layout coordination. Tile selections and layout decisions occur early in the project, but installation can take place months later. We document orientation, location-specific tile types, grout selection, and transitions using both written notes and photos. These visuals are placed at each installation area to maintain clarity for field crews and support consistent alignment with the approved design.
Custom homebuilders must implement process controls that prevent unnecessary rework. Effective mistake-proofing protects the project schedule, enhances communication, and helps preserve the client’s design intent. Rivendale Homes continues to refine these methods as part of our commitment to delivering well-built custom homes.
Rivendale Homes integrates these mistake-proofing strategies across many other scopes, including mechanical coordination, waterproofing transitions, cabinet fabrication reviews, and finish quality verification. The value of these systems becomes increasingly important as the level of customization and investment rises, because the margin for misunderstanding becomes smaller. Clients seeking a highly personalized, architect-driven home benefit from a builder that can manage this complexity with precision. Our continued focus on process control and visual communication positions us to deliver homes that reflect the level of care and attention expected in Austin’s luxury market.
References
Tommelein, I. D. (2024). Mistakeproofing! It’s in the cards: A serious game. Lean Construction Journal, 1–12. https://doi.org/10.60164/ql7dq3pty